150Lb手柄式對夾內襯蝶閥
軟密封蝶閥采用內襯式結構,結構簡單而實用,上線以 后,幾乎不需要調試和維護。內襯式蝶閥的工作環境只需要 注意,溫度不能超過襯里的使用極限溫度,介質中無堅硬的 顆粒狀固體即可。
產品概述

軟密封蝶閥采用內襯式結構,結構簡單而實用,上線以 后,幾乎不需要調試和維護。內襯式蝶閥的工作環境只需要 注意,溫度不能超過襯里的使用極限溫度,介質中無堅硬的 顆粒狀固體即可。
產品特點
1. 軟密封蝶閥采用內襯式結構,結構簡單而實用,上線以后,幾乎不需要調試和維護。內襯式蝶閥的工作 環境只需要注意,溫度不能超過襯里的使用極限溫度,介質中無堅硬的顆粒狀固體即可。
2. 蝶閥襯里采用可快速更換式襯里,襯里為橡膠+骨架的形式,在工程應用時,無需復雜工具即可更換;
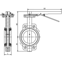
3. 對于小口徑內襯式蝶閥,閥桿與蝶板的相連部分就有兩種形式:有銷型和無銷型;
4. 有銷型的優點:閥桿與蝶板緊密相連,經過點焊處理的銷,在實際使用過程中,不會出現銷丟失的情況;
5. 無銷型的優點:對于小口徑可更換式內襯蝶閥,工程現場的維護相對簡單,可就地分解和裝配。
6. 閥桿與閥體之間的密封,小,中口徑均采用 O 型圈密封。
7. 內襯的材料可選:EPDM(≤120℃), NBR(≤80℃), Neoprene(≤80℃), FPM(≤150℃)等橡膠類材料。
8. 具體選型問題,請于訂貨前與我司資深工程師進行聯系確認。

壓力級 150Lb 連接端 對夾
結構形式 中線型 執行器 手柄
相關標準
設計標準 API 609 檢測標準 API 598
連接標準 ASME B16.5 上法蘭 ISO 5211
適用介質: 水,油,氣等
零件材料

材料
序號 部件名稱
DI DI DI WCB CF8 CF8M
1 閥體 DI DI DI WCB CF8 CF8M
2 蝶板 DI N10276 C95400 WCB CF8 CF8M
3 閥桿 416 N10276 Monel 420 304 316
4 閥座 EPDM
5 填料 PTFE
6 螺栓 B7 B7 B7 B7 B8 B8M
7 螺母 2H 2H 2H 2H 8 8M
連接尺寸
口徑 結構長度 | 上法蘭到管道 中心高 | 底部到管道中 心高 | 手輪/手柄 | 力矩 (N.M) | Cv 備注 |
2”(DN50) 43 165 82 275 10 130 F07
2.5”(DN65) 46 175 88 275 18 230 F07
3”(DN80) 46 180 97 275 25 340 F07
4”(DN100) 52 200 114 275 30 648 F07
5”(DN125) 56 215 127 290 80 1250 F07
6”(DN150) 56 235 140 290 110 1830 F10
8”(DN200) 60 280 174 390 190 3400 F10
|
||||||||||||||||||||||||
![]() |
||||||||||||||||||||||||
| ||||||||||||||||||||||||










